欢迎光临 : 天丽开关有限公司 官网!
邮箱:tianli@tianli-ele.com 服务热线:400-627-9818

|
FZW32-12/T630-20系列户外交流高压真空断路器负荷开关 |
||||||||||||||||||||||||||||||||||||||||||||||||||||||||||||||||||||||||||||||||||||||||||||||||||||||||||||||||||||||||||||||||||
| ◎概述 | ||||||||||||||||||||||||||||||||||||||||||||||||||||||||||||||||||||||||||||||||||||||||||||||||||||||||||||||||||||||||||||||||||
|
主要用途FZW32-12/T630-20型户外高压隔离真空负荷开关是新一代高压电器产品。经严格的型式试验和长期试运行考核。各项技术性能指标全部达到GB-3804IEC标准。该产品主要为城网农网建设的改造而设计,适用额定电压12KV。三相交流50HZ的供电网络中,该产品底架采用不锈钢材料或热镀锌外加防紫外线保护涂料的碳钢,确保了机体在户外环境下的正常运行,零部件采用不锈钢材料,确保了负荷开关的耐用性,稳定性和防水 防盐雾等性能该产品具有体积小 重量轻 外型美观 操作简便 高参数,开断能力大,安全可靠,电寿命长,可频繁操作。少维护 断口明显等级具显著的特点。操作方式采用单杆式手动操作,也可采用电动,远控操作。 |
||||||||||||||||||||||||||||||||||||||||||||||||||||||||||||||||||||||||||||||||||||||||||||||||||||||||||||||||||||||||||||||||||
| ◎主要技术参数 | ||||||||||||||||||||||||||||||||||||||||||||||||||||||||||||||||||||||||||||||||||||||||||||||||||||||||||||||||||||||||||||||||||
|
负荷开关主要技术参数
二.负荷开关真空灭弧室装置配调整技术参数
三.隔离刀装置配调整技术参数
|
||||||||||||||||||||||||||||||||||||||||||||||||||||||||||||||||||||||||||||||||||||||||||||||||||||||||||||||||||||||||||||||||||
|
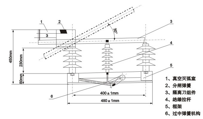
◎外形安装尺寸 |
||||||||||||||||||||||||||||||||||||||||||||||||||||||||||||||||||||||||||||||||||||||||||||||||||||||||||||||||||||||||||||||||||
|